Особняк у реки в центре города
Узнать подробнее

Четырехэтажный современный особняк у реки внутри Садового кольца в центре города для настоящих ценителей жизни.

Современная архитектурная концепция сочетает большие окна эпохи модерна c греческой классикой и декором в стиле рококо.

Окружающая застройка набережной Москвы-реки сформировалась в середине XX века.

Подробнее

Новое монолитно-кирпичное строительство. Материал отделки фасада: натуральный камень. Эксплуатируемая кровля и цокольный этаж.

  • Срок сдачи:
    июнь 2019 г.
  • Общая площадь: 788,7 кв.м
  • Цена за кв.м: 780 тыс.руб. с НДС
  • Первый этаж: 144,1 кв.м
  • 2-4 этаж: 153 кв.м/жилая: 119,2 кв.м
  • Цокольный этаж: 155,5 кв.м
  • Кровля: 137,4 кв.м
  • 3 балкона на четвертом этаже
  • Высота потолков: 3-3,2 м

Современные инженерные коммуникации. Потолочная вентиляция вдоль несущих стен. Зона размещения вентиляционного оборудования на кровле.

Технические помещения в подвальной зоне.

Гараж с системой автоматической парковки:
- 4 машиноместа внутри здания;
- 8 гостевых машиноместа рядом со зданием.

Помещения для персонала в цокольном этаже.
Лифт грузоподъемностью 1000 кг
Механизм с платформой подъема для инвалидов.

Узнать условия покупки

Виды планировок

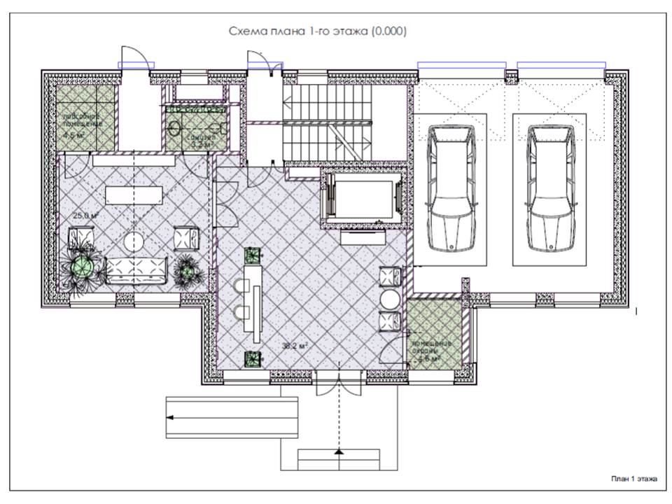
Первый этаж

  • Общая площадь:
    144,1 кв.м

Подробнее

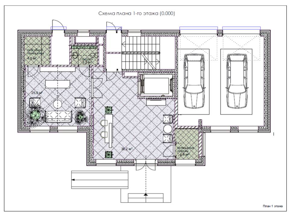
  • Вестибюль:
    38,2 кв.м
  • Лестничная клетка: 13,8 кв.м
  • Зона лобби-бара: 25,6 кв.м
  • Кухня бара (ниша): 4,5 кв.м
  • Санузел: 3,2 кв.м
  • Гараж: 48,6 кв.м
  • Помещение: 6,6 кв.м

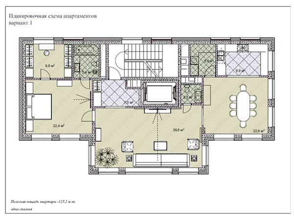
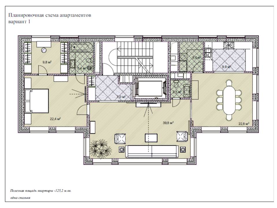
Второй этаж

  • Общая площадь:
    125,2 кв.м

Подробнее

  • Лестничная клетка:
    14,3 кв.м
  • Прихожая: 7,0 кв.м
  • Зона кухни: 9,9 кв.м
  • Прачечная: 5,0 кв.м
  • Санузел: 2,5 кв.м
  • Столовая:22,8 кв.м
  • Гостиная:38,2 кв.м
  • Спальня:22,4 кв.м
  • Гардеробная:9,8 кв.м
  • Ванная комната:5,4 кв.м

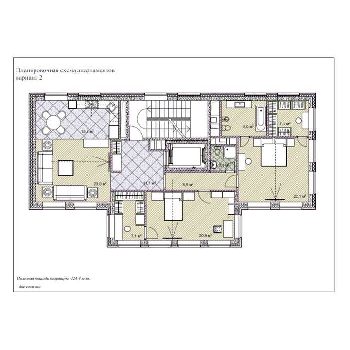
Третий этаж

  • Общая площадь:
    125,2 кв.м

Подробнее

  • Лестничная клетка:
    14,3 кв.м
  • Прихожая: 17,0 кв.м
  • Коридор: 5,9 кв.м
  • Кухня-столовая: 15,5 кв.м
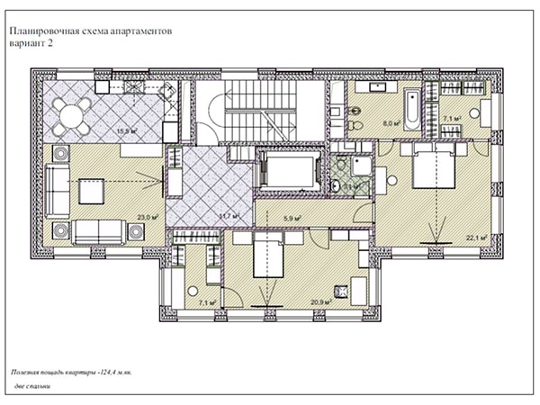
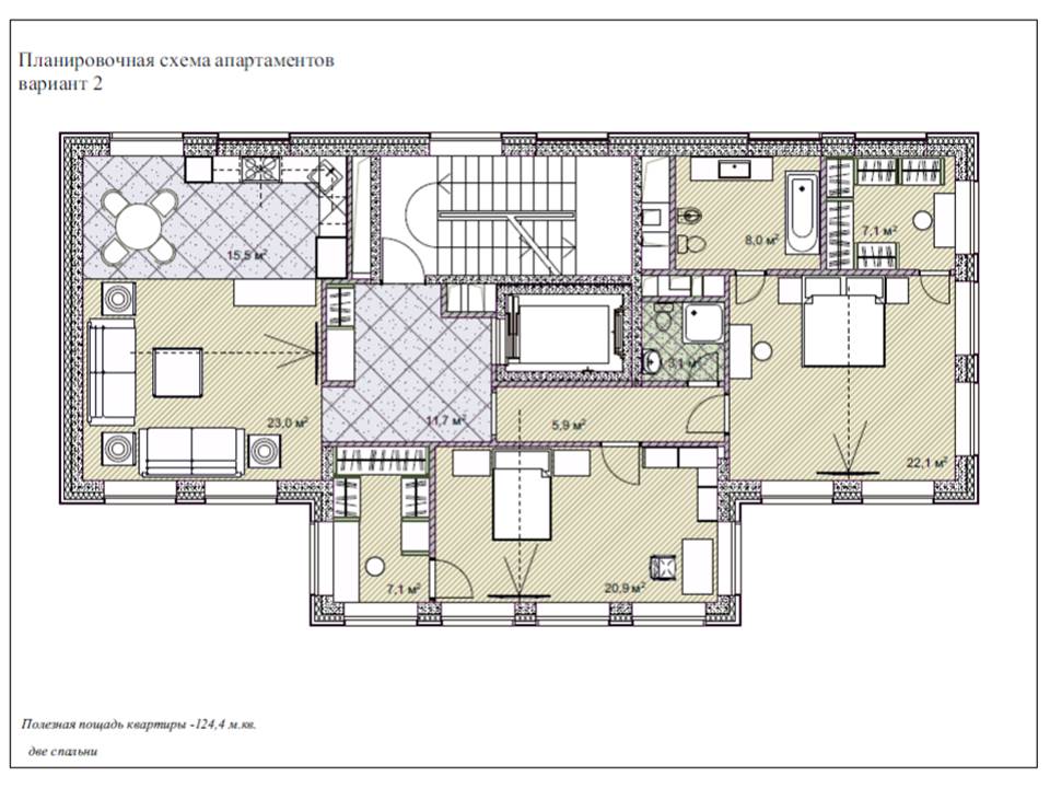
  • Гостиная:23,0 кв.м
  • Спальня №1:20,9 кв.м
  • Гардеробная №1:7,1 кв.м
  • Ванная комната:8,0 кв.м
  • Санузел:3,1 кв.м
  • Спальня №2:22,1 кв.м
  • Гардеробная №2:7,1 кв.м

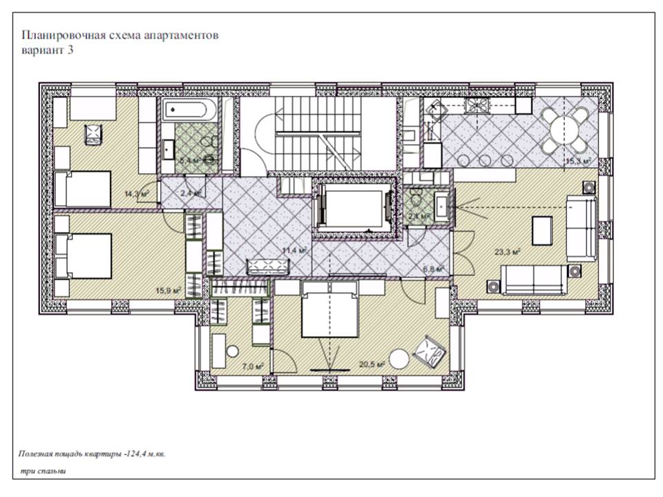
Четвертый этаж

  • Общая площадь:
    125,2 кв.м

Подробнее

  • Лестничная клетка:
    14,3 кв.м
  • Прихожая: 11,4 кв.м
  • Коридор: 6,8 кв.м
  • Кухня-столовая: 9,9 кв.м
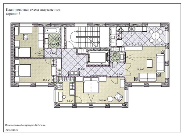
  • Гостиная:23,3 кв.м
  • Спальня №1:20,5 кв.м
  • Гардеробная:7,0 кв.м
  • Спальня №2:15,9 кв.м
  • Спальня №3:14,3 кв.м
  • Ванная комната:5,4 кв.м

Варианты отделки по желанию покупателя

Узнать условия покупки
Узнать условия покупки